Purcell Park
Harrisonburg Neighborhoods
Scott P. Rogers, Associate Broker, Funkhouser Real Estate Group
 A service of Scott P. Rogers, Associate Broker, Funkhouser Real Estate Group 540.578.0102 | scott@HarrisonburgHousingToday.com 
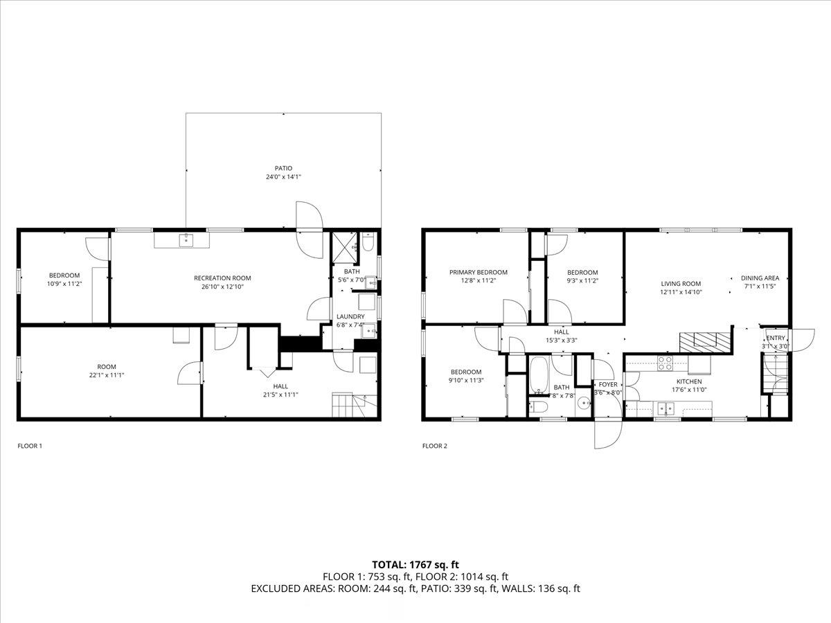
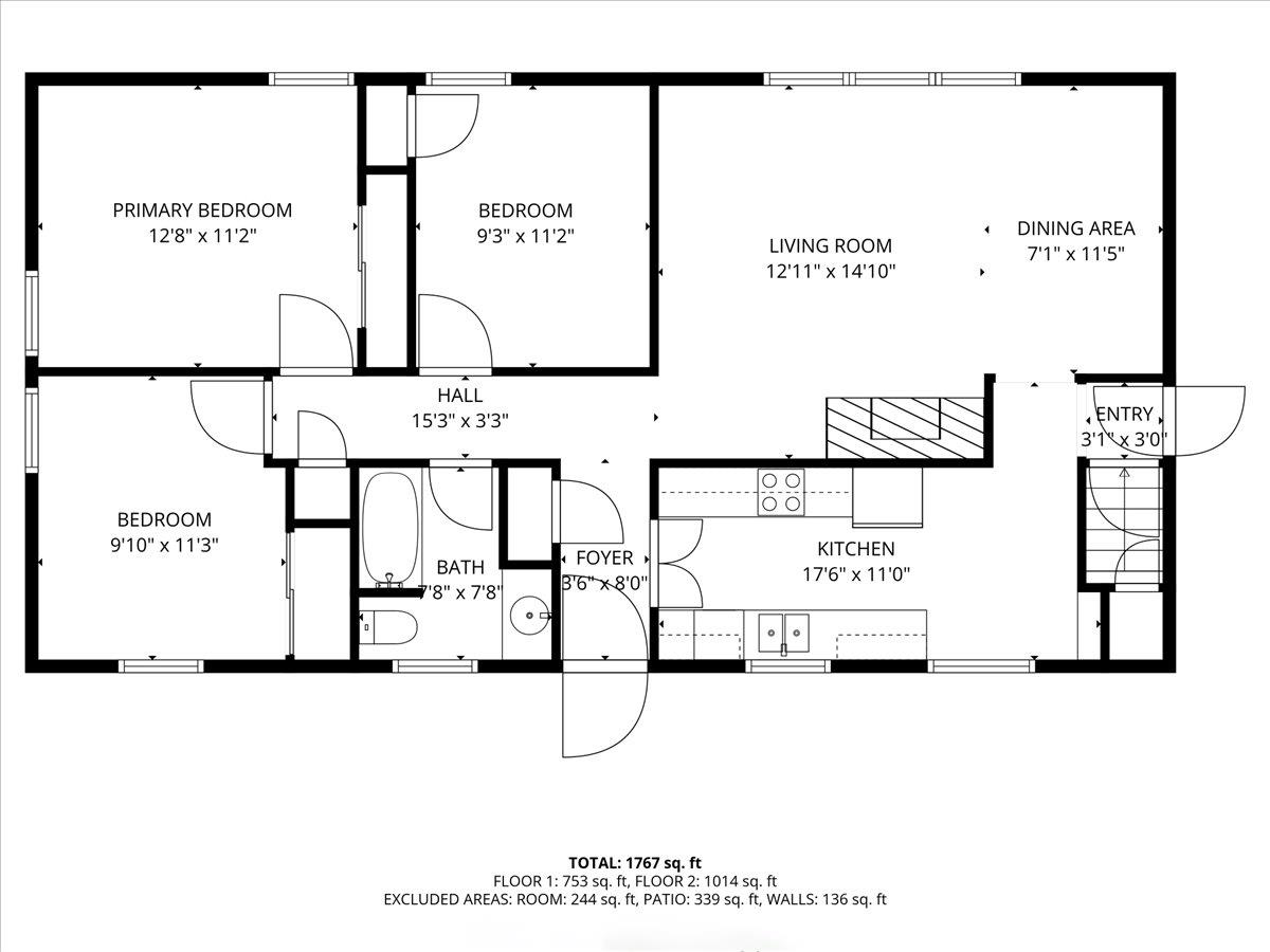
1403 Crawford Ave, Harrisonburg, VA
4 BR  •  2 BA  •  2,300 SF  •  c 1960  •  15 DOM
$355,000  •  Under Contract
Listed by Valley Realty Associates
Welcome to 1403 Crawford Ave., a classic brick home in Harrisonburg’s Purcell Park neighborhood. Walk to JMU and Purcell Park; Downtown, shopping, and I-81 are only minutes away. Off-street parking adds everyday ease. Inside: 4 bedrooms, 2 baths, and recent work where it counts, new HVAC, new roof, updated flooring, and fresh paint inside and out within the last year. The basement offers flexible space, ideal for an extra family room plus a workout or craft area.
Keister Elementary  •  Thomas Harrison Middle  •  Harrisonburg High